Vendita Capannone con Uffici

  • euro 250.000
Via delle Moglie, Carcare, Savona, Liguria, 17043, Italia
VENDUTO
Vendita Capannone con Uffici
Via delle Moglie, Carcare, Savona, Liguria, 17043, Italia
  • euro 250.000

Descrizione

Carcare – Via delle Moglie, zona Vecchia Fornace

Vendita capannone artigianale su due livelli, con area esterna esclusiva e spazi comuni

Situato in una posizione strategica, questo capannone offre ampi spazi interni ed esterni, garantendo un ambiente ideale per attività artigianali e industriali.

Descrizione degli spazi

Piano Terra (396 mq)
Il fulcro operativo dell’edificio, ideale per ospitare attrezzature industriali e linee di produzione. Le solide pareti assicurano isolamento termico e acustico, creando un ambiente sicuro e confortevole per gli operatori.

  • Altezza interna: sotto trave 4,75 m, sotto solaio 5,65 m.

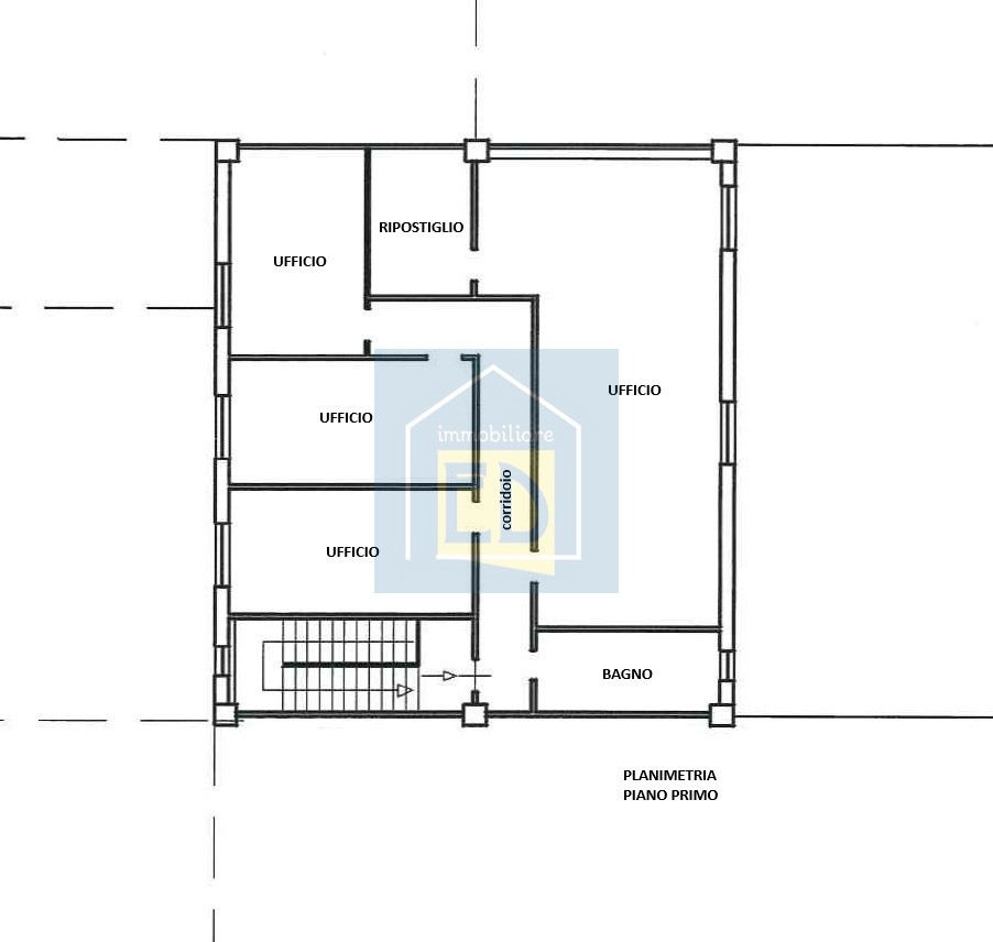
Piano Primo (145 mq)
Uno spazio versatile destinato a uffici direzionali, sale riunioni o aree logistiche. Le ampie finestre panoramiche garantiscono luminosità naturale e una piacevole vista sull’area circostante.

  • Altezza interna: 2,80 m.

Aree Esterne

  • Area esclusiva (280 mq): ideale per stoccaggio temporaneo o altre attività operative.
  • Area comune: spazi per parcheggio e movimentazione di veicoli industriali e materiali, carico/scarico merci.

Collegamenti strategici

La proprietà è ben connessa alle principali città della Liguria, grazie alla rete viaria che include il casello autostradale di Altare (TO-SV), situato a soli 2 km di distanza.

Caratteristiche del capannone

  • Luminosità naturale: lucernari a copertura e finestre verticali garantiscono un’illuminazione eccellente, anche zenitale.
  • Impianto elettrico avanzato: 8 prese ad alta tensione distribuite nell’area industriale.
  • Riscaldamento autonomo: a gasolio, con termosifoni al piano uffici e bruciatori nell’area produttiva.
  • Impianto fotovoltaico: 10 kW installati sul tetto circa due anni fa, per una maggiore efficienza energetica.
  • Sicurezza completa: sistema antifurto su entrambi i livelli.

Questa soluzione rappresenta un’opportunità unica per chi cerca un capannone funzionale e ben posizionato, perfetto per far crescere la propria attività.

 

Ulteriori informazioni per questo immobile  presso ED Immobiliare Via Verzellino 13 rosso

cellulare diretto 366 206 3333 Mauro  –  339 47 17 670 Elisabetta

www.edimmobiliare.com

Dettagli

Aggiornato il Febbraio 19, 2026 at 11:18 am
  • Prezzo: euro 250.000
  • Superficie immobile: 541 mq
  • Terreno: 280 mq
  • Bagni: 2
  • Stato dell'immobile: VENDUTO
  • Piano dell'immobile : terreno e primo
  • Indirizzo Via delle Moglie
  • Città Carcare
  • Provincia Savona
  • CAP 17043
  • Stato Italia

Planimetrie

image

Descrizione:

image

Descrizione:

Caratteristiche

Informazioni di contatto

Guarda la lista immobili

Richiedi informazioni su questa proprietà

Confronta Strutture

Confronta
Mauro Pera
  • Mauro Pera